
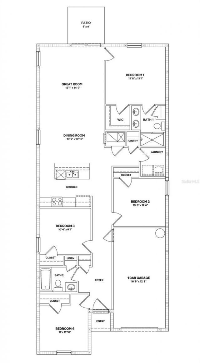
Under Construction. Receive up to $10,000 towards closing costs and special interest rates with the use of our preferred lender. The Cameron is a floor plan designed with both comfort and functionality in mind. Featuring 4 bedrooms and 2 bathrooms, this home offers plenty of space for families of all sizes. The Cameron is a floor plan designed with both comfort and functionality in mind. Featuring 4 bedrooms and 2 bathrooms, this home offers plenty of space for families of all sizes. The open-co...Under Construction. Receive up to $10,000 towards closing costs and special interest rates with the use of our preferred lender. The Cameron is a floor plan designed with both comfort and functionality in mind. Featuring 4 bedrooms and 2 bathrooms, this home offers plenty of space for families of all sizes. The Cameron is a floor plan designed with both comfort and functionality in mind. Featuring 4 bedrooms and 2 bathrooms, this home offers plenty of space for families of all sizes. The open-concept layout connects the kitchen, dining, and living areas, creating a welcoming space that's perfect for entertaining guests or spending quality time together. The primary suite, located at the rear of the home, provides a private retreat with its own bathroom and walk-in closet, while three additional bedrooms add flexibility for family, guests, or a home office.
View MoreCourtesy of
Agency Name: D.R. HORTON REALTY OF SARASOTA
Agency Contact: 941-256-7010
Agent Name: Sarah Bordeaux
Presented by
Agent Name: Clara Martinez
Agent Phone: 561.350.8525
Agency Title: The Keyes Company
Request Info
Send an email with a link to
17859 Wheat Stack Court , Parrish, FL 34219.
Email 17859 Wheat Stack Court , Parrish, FL 34219
Thank you for your inquiry! As a thank you, we have a Special Mortgage Offer for You.
We would like to provide you a free, no-obligation, home loan pre-approval review.